Vibrant Living | Furnished | High Floor | Huge Layout | High End Amenities

Start from:
AED 825000

DAMAC Ghalia, JVC District 18, Jumeirah Village Circle (JVC), Dubai

Date
Appartment

1

2

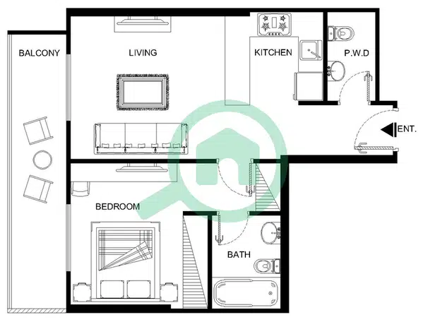
676 sqft

Overview

Hundred Homes Buying and Selling of Real Estate L. L. C is pleased to exclusively present this one-of-a-kind, high-end, one Bed apartment, in the stunning building of Ghalia Constella, Jumeirah Village Circle. Viewings are highly recommended.

This unit is spread over 675.76 sq. ft opening up to a beautiful open-plan kitchen, fitted with integrated appliances and ample storage. Open plan easy layout to accommodate both living and bedroom areas, large private balcony with views over the Dubai skyline.

Please call for more details, to arrange a viewing, or to make an offer.

• High End Finishing
• One allocated parking space
• Low Cost Utilities
• Integrated Appliances
• Large Balcony

Facts and Features

Parking

Yes

Security

Yes

CCTV

Yes

Conference Hall

Yes

Heating

Yes

Cooling

Yes

Offices Amenities

Furnished | Electricity Backup | Centrally Air-Conditioned | Central Heating | Double Glazed Windows | Balcony or Terrace | Lobby in Building | Reception/Waiting Room | First Aid Medical Center | Gym or Health Club | Swimming Pool | Jacuzzi | Sauna | Steam Room |Day Care Center | Kids Play Area | Lawn or Garden | Barbeque Area | Cafeteria or Canteen | Waste Disposal | Maintenance Staff | Business Center | Conference Room | Security Staff | CCTV Security | Intercom | 24 Hours Concierge | Pets Allowed | Freehold

Location

Unit Structures

You may also like

Check it